2020年、新築マンションを契約したアタシ。前回は検討したマンション3棟の比較と契約したマンションについての記事を公開したけど、今回は契約したマンションの間取りについて公開しちゃいま~す!
契約したマンションはファミリー向けマンションで間取りは2LDK~4LDK。
地方都市の分譲マンション、しかも都会によくあるタワーマンションではなく、俗にいう板状マンション。こういう板状マンションは基本的にファミリー向けで単身向け間取り(1ルームや1LDK)はほぼなくて、一番小さい間取りでも2LDKでDINKsカップル向けな感じ?
で、アタシは単身だけど3LDKを契約(笑)
単身で3LDKとかバカじゃない???とかっていうツッコミが入りそうだけど、アタシでもバカだと思うわよ(笑)コロナが流行する前だったら、2LDK を選んでたと思うけどコロナになって在宅ワークが主流になっっちゃったし、リビングダイニング、寝室とは別で在宅部屋が欲しいし、あと1部屋は物置きとしt・・・ではなくゲストルームとしてとか色々妄想したけど、結局は大は小を兼ねるし? 3LDKでいいんじゃない?って軽い気持ちで選んだわ(笑)
3LDK分譲マンションをを契約しちゃったアタシが自分を正当化するために最近自分に言い聞かせてること:”将来売りに出すことを考えたら3LDKのほうが売りやすいとか”
これは、無駄に部屋数のある住戸を契約してしまったアタシの超希望的観測になっちゃうんだけど、将来マンションを売るときになったらファミリー向けの3LDKのが売れやすいんだとか。駅近マンション(徒歩5分)だし、3LDKだったら将来の資産価値も下がりにくいのでは? と切に願うことにするわ。
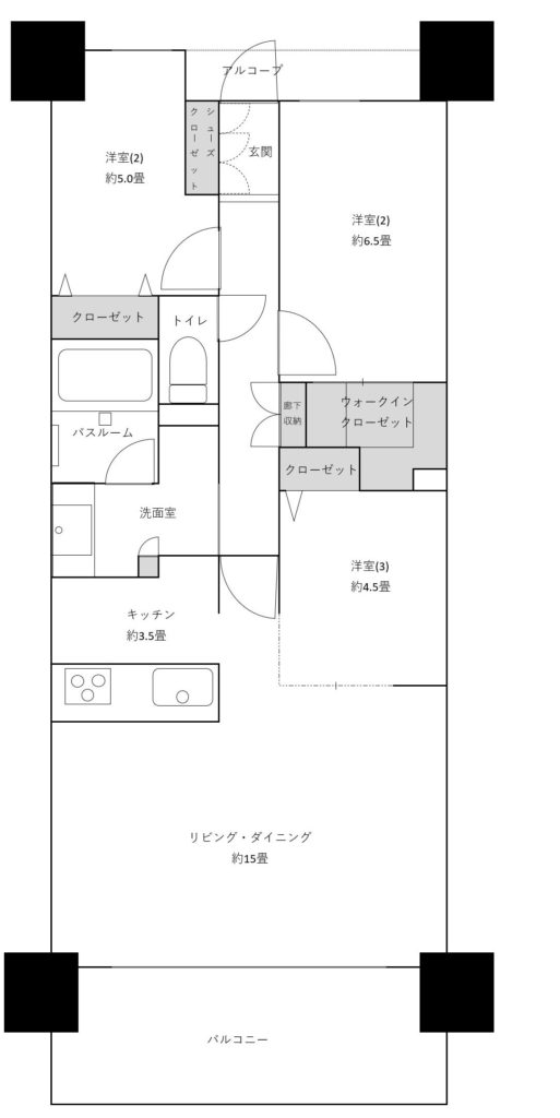
板状マンションの3LDKの間取りはほぼ田の字レイアウト。さらに横長リビングと縦長リビングの2種類が主流。
以下の間取り図はアタシが契約したマンションの間取り図ではないだけど、大体同じ感じの間取り。


横長リビングと縦長リビングのメリット・デメリット
横長と縦長リビングのメリットデメリットは表裏一体ね~。これの好みは人によるかと思うわ~。
| 横長リビング | 縦長リビング | |
| メリット | リビング窓からキッチン・リビング・ダイニングまでの距離が近く採光が取れるため、キッチンも明るい | 洋室(3)にも窓があるため採光が取れ明るい |
| デメリット | 洋室(3)には窓がないため、暗くなりがち | キッチン側は窓から遠いため採光が届かず暗くなりがち |
私が契約したマンション間取りは横長リビングタイプ。
縦長と横長、いろいろ迷った末横長リビングの間取りにしたけど、正直どっちでもよかったわ。アタシのマンションの場合、横長リビングの間取りのほうがリビング畳数が広かったから、”大は小を兼ねる(本日2回目)”で横長リビングにした気がする(イマイチ記憶がない・・・笑)
最後に、間取り公開!
コチラがアタシが購入したマンションの間取り。HPに載ってる間取り図をそのまま載せちゃうと物件特定される可能性あるから、今回載せてる間取り図はアタシがエクセルを駆使して作った間取り図なのはご承知を♪横長リビングタイプでリビングダイニングで15畳ほど。奥まった位置に洋室(3)が配置されてて、スライドドアを開けばリビングダイニングを一体化できるようになってるのがお気に入りポイントね~。 総じて、よくある板状マンションの‘3LDK田の字レイアウトの間取りって感じ。

次回は早期購入の唯一のメリット、マンションのカラーセレクトとオプション追加について、アタシがつけたオプションと値段も公開するのでお楽しみに!!
にほんブログ村
にほんブログ村





最近のコメント